José Ángel Nieto García.

arquitecto

Menú

Saltar al contenido.
  • Inicio
  • contacto
  • currículum
« »

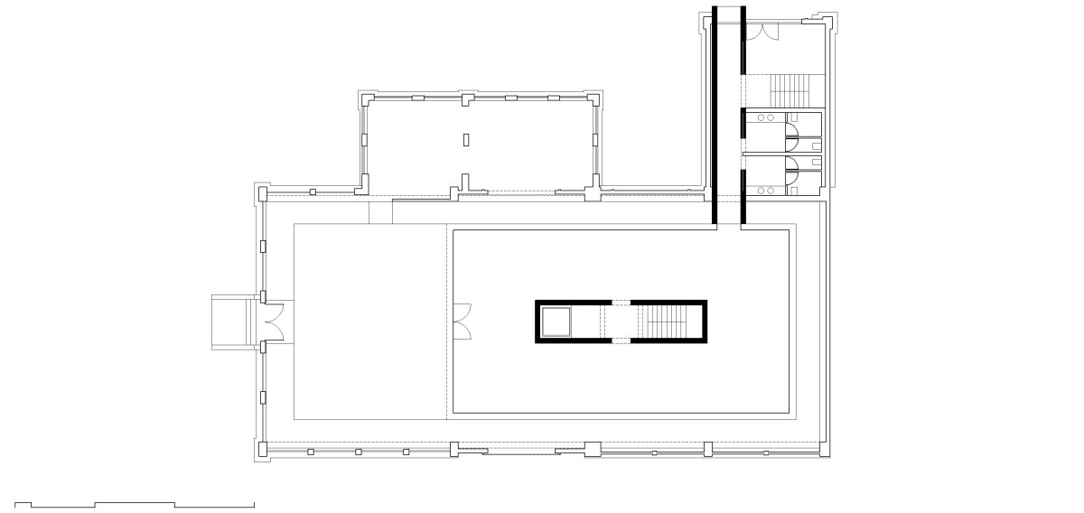
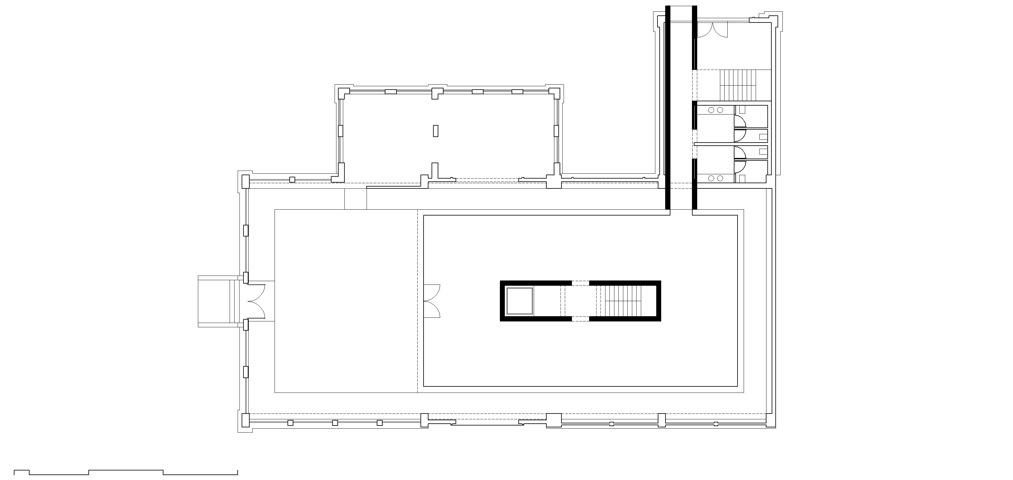
planta de acceso

planta de acceso

,
3291 × 1559
Rehabilitación Almacén 5, Fábrica Lafarge, Villaluenga de la Sagra, Toledo.
Blog de WordPress.com.
  • Suscribirse Suscrito
    • José Ángel Nieto García.
    • ¿Ya tienes una cuenta de WordPress.com? Inicia sesión.
    • José Ángel Nieto García.
    • Suscribirse Suscrito
    • Regístrate
    • Iniciar sesión
    • Copiar enlace corto
    • Denunciar este contenido
    • Ver la entrada en el Lector
    • Gestionar las suscripciones
    • Contraer esta barra